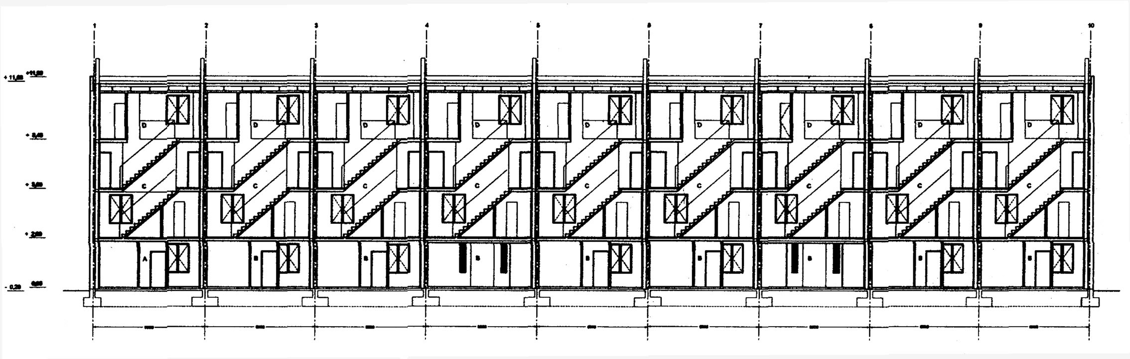
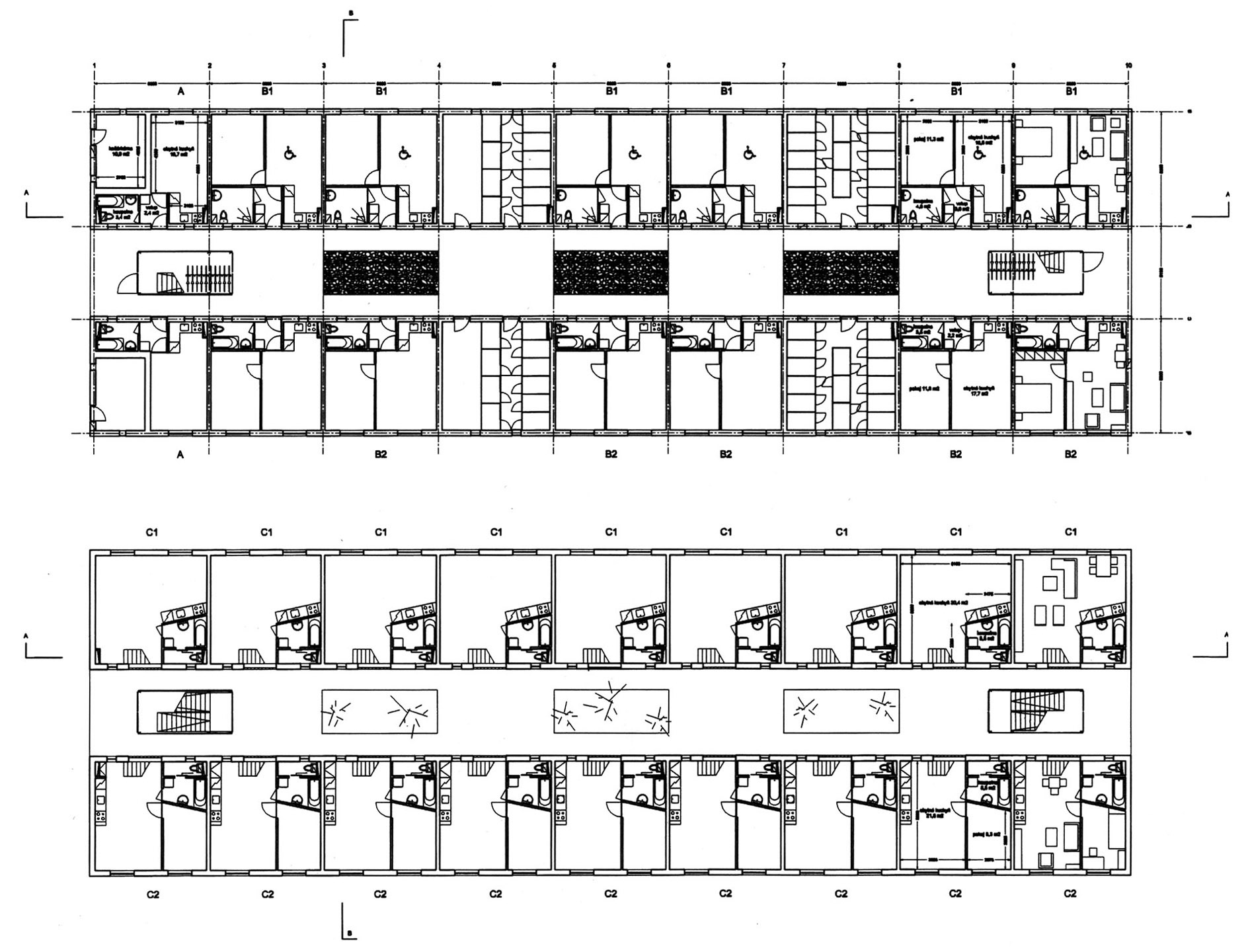
Startovní byty Říčany u Prahy

vítězný návrh, oceněný zvláštní cenou Ministra pro místní rozvoj v kategorii nájemního bydlení, 1999

autor: Petr Hrůša, Petr Pelčák

zadavatel: Ministerstvo pro místní rozvoj

realizace: 1999