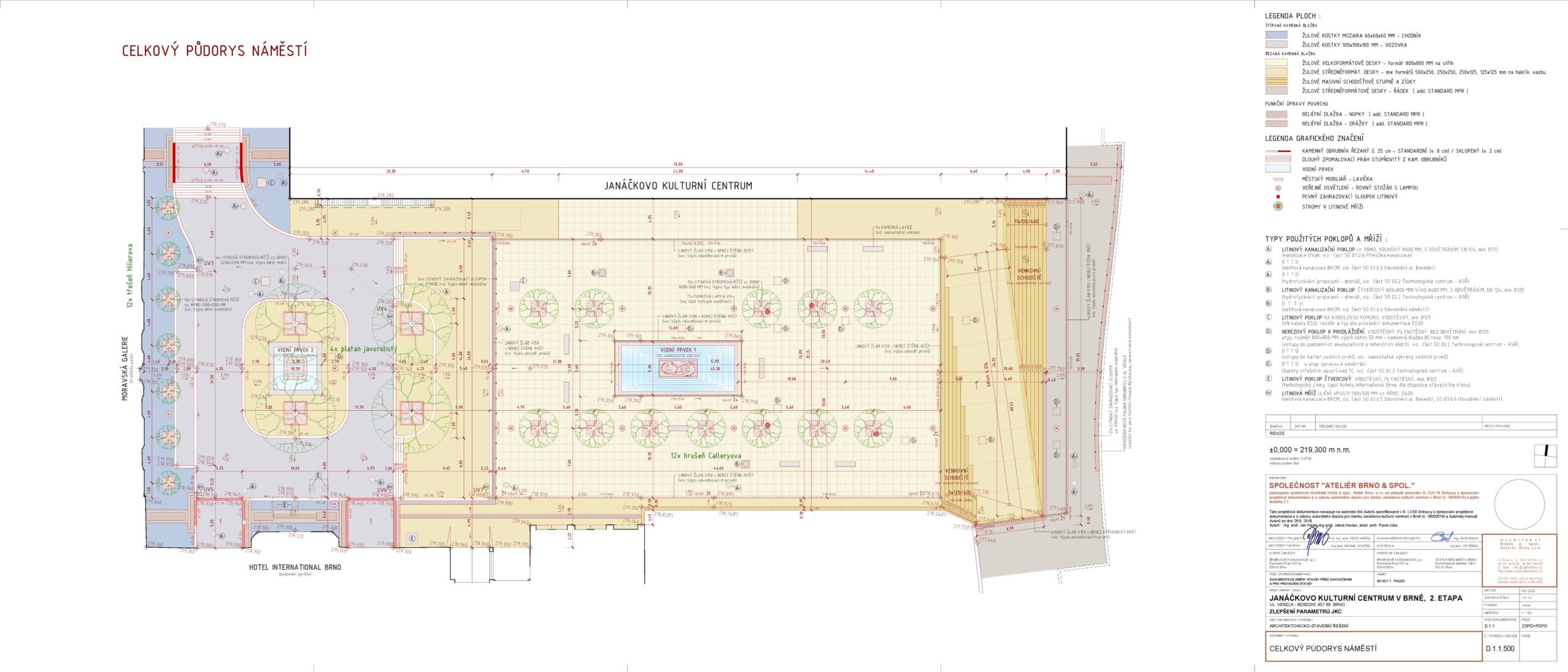
Náměstí Ludvíka Kundery
autor: Petr Hrůša
spolupráce: Igor Bielik, David Přikryl
investor: Statutární město Brno, Brněnské komunikace
projekt: 2024
vizualizace: Volha Smolnikava

Vytvořená dokumentace „Změna stavby před dokončením (dále ZSPD)“ řeší DOPLNĚK A ZMĚNU PROJEKTU navazujícího okolí budovy koncertního sálu Janáčkova kulturního centra (JKC), a to v rozsahu tzv. piazzety, pojmenované náměstí Ludvíka Kundery. Jde o prostor před hlavním vstupem do JKC ohraničeného jižní fasádou budovy koncertního sálu, ulicí Veselou, severní hranicí pozemků Hotelu International Brno a východní fasádou Pražákova paláce se sídlem Moravské galerie. Pod částí této řešené plochy se nachází podzemní objekt SO 01.2.2 JKC – Technologické centrum vyprojektovaný v rámci ZSPD z 03/2021 a DPS. Doplněk a změna byla vyvolána novou majetkoprávní situací, kdy po letech jednání se městu podařilo v druhé polovině roku 2022 dohodnout se s majiteli Hotelu International Brno na odkupu pozemků se stávající trafostanicí hotelu a venkovním schodiště a na podobě dopravního řešení na piazzetě pro hotel vyhovující. V projektu se jednalo o zlepšení parametrů prostoru před budoucím hudebním sálem JKC ve smyslu optimalizace ekonomických nároků s promítnutím do funkčního uspořádání a reprezentativního estetického vzhledu jako celku.
Na Stavebně konstrukční řešení JKC v rozsahu tzv. Technologického centra mají dopad řešení architektonické podoby náměstí ve smyslu změn a zlepšení parametrů polohopisu, výškopisu, povrchů, odvodnění, veřejného osvětlení, zeleně, mobiliáře, vodních a výtvarných prvků a podzemního propojení garáží JKC s vjezdem do Přístavby. Tato dokumentace je právně platná a na podzim roku 2024 byla zahájena výstavba další etapy budovy JKC, na kterou bude navazovat výstavba nového Brněnského náměstí.


